科士达YDC3300系列接线方式
一旦设备最终可靠的安装好,请按照如下描述的步骤连接电源线。
检查 UPS 设备是否与外部电网完全隔离,UPS 的输入/输出空开是否完全打开。检查输入电源线间 是否电气绝缘,张贴必要的警告标识以防疏忽操作。 将接线排挡板拆开,以便进行接线

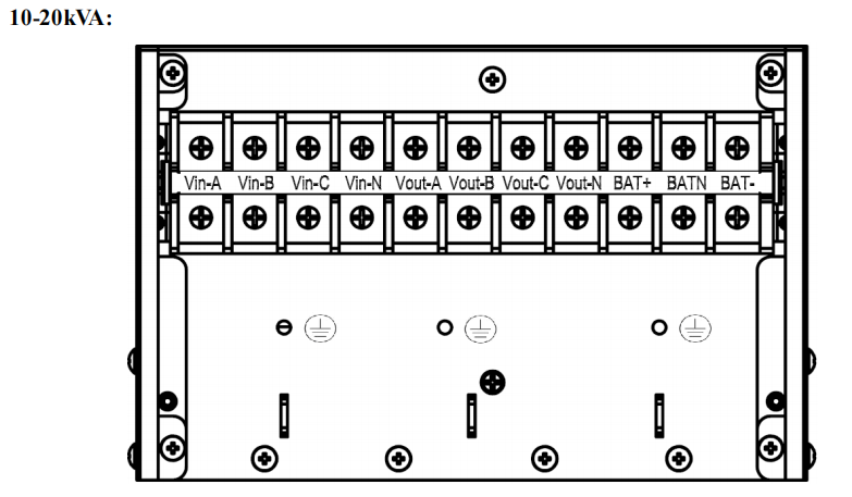
接线排上接线顺序从左到右为:输入 A 相,输入 B 相,输入 C 相,输入 N 线,输出 A 相,输出 B 相, 输出 C 相,输出 N 线,电池正,电池 N,电池负。接线排下面有三个地线接线端。

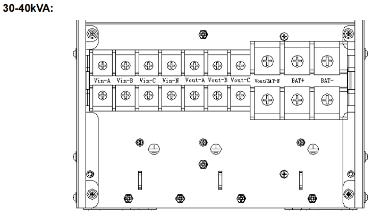
接线排上接线顺序从左到右为:输入 A 相,输入 B 相,输入 C 相,输入 N 线,输出 A 相, 输出 B 相,输出 C 相,电池/输出 N 线,电池正,电池负。接线排下面有三个地线接线端。 选择合适大小的电缆线(见电缆线径表);注意电缆线的接线端子孔径应大于或等于接线柱 的直径; 采用正确的配电方式。

警告! 如果负载设备不准备接收电能,确保与 UPS 系统输出电缆终端是安全绝缘的 连接所有需要接地的电缆到机器的接地铜排上,并与安全大地连接。 地接和零线的连接排必须符合当地和国家的实际要求。




客服1